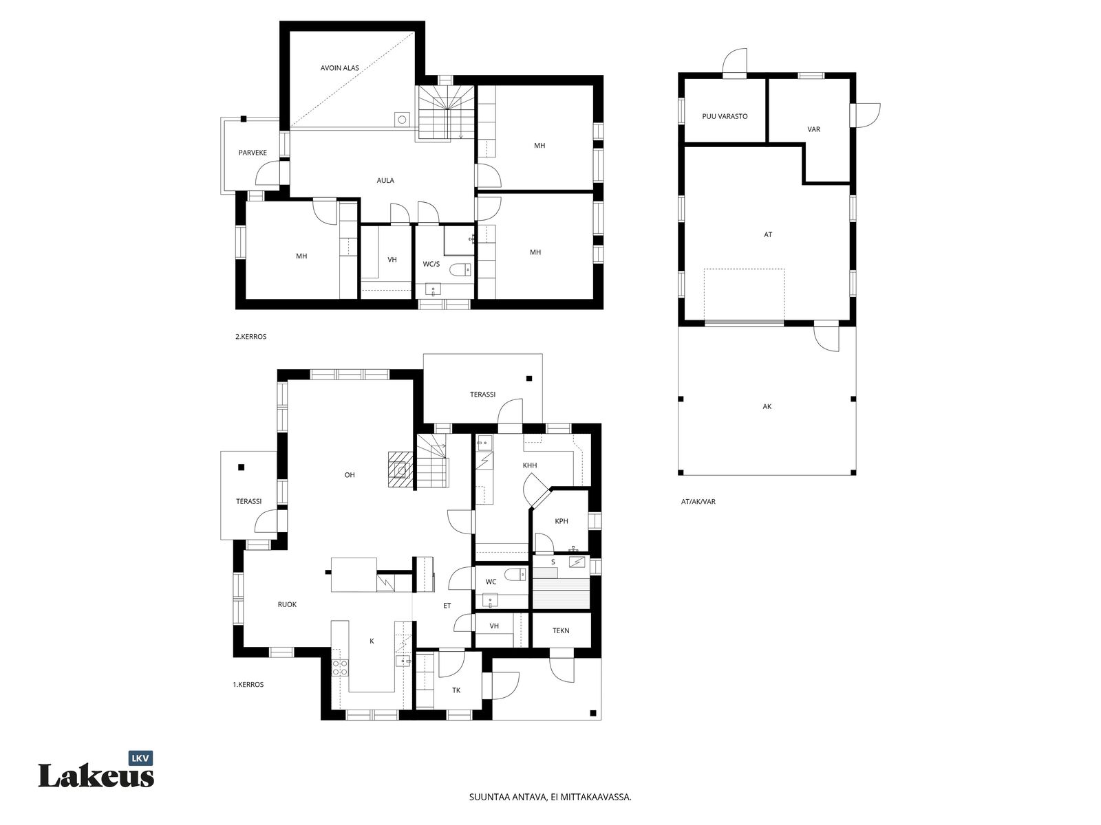
3mh+k+rt+aula+oh+wc+khh+kph+s+2xwc+et+lasitettu terassi, 167.0 m², 349 000 €
Omakotitalo, Seinäjoki, Kultavuori, Hippukatu 2
Seuraava esittely:
16.11.2025 14:00 - 14:40
Perustiedot
Sijainti:
Seinäjoki Kultavuori
Huoneisto:
Hippukatu 2
Tyyppi:
omakotitalo
Kerros:
1-2 / 2
Velaton hinta:
349 000 €
Myyntihinta:
349 000 €
Hoitovastike:
Rahoitusvastike:
Vapautuminen:
Rakennusvuosi:
Asuinpinta-ala:
Yleiskunto:
hyvä
Tontin omistus:
oma
Kiinteistötunnus:
Kaavoitustilanne:
Asemakaava
Tontin pinta-ala
Kerrosala:
Muut tilat:
Rakennukset:
Lisätietoja:
Lisätiedot
Kustannukset ja rasitukset
Kunto ja varustus
Yhteydet ja palvelut
Muut tiedot
Ilmanvaihto
Koneellinen tulo, koneellinen poisto, lämmön talteenotto
Jääkaappi ja pakastin
Jääkaappi/pakastin
Keittiön lattiamateriaali
Laatta
Keittiön seinien materiaali
Maalattu
Keittiön työtasojen materiaali
Kivi
Keittion muut varusteet
Liesituuletin, mikroaaltouuni, astianpesukone
Kiinteistön vesijohto
Kunnan
Kodinhoitohuoneen lattiamateriaali
Laatta
Kodinhoitohuoneen seinämateriaali
Lasikuitutapetti
Kodinhoitohuoneen varustus
Pesukoneliitäntä, pesuallas, lattialämmitys, lattiakaivo, pyykkikaapit, kurapiste, pöytätaso
Kylpyhuoneen lattiamateriaali
Laatta
Kylpyhuoneen seinämateriaali
Kaakeli
Kylpyhuoneen varustus
Lattialämmitys, suihku
Lämmitys
Vesikiertoinen lattialämmitys
Lämmitysjärjestelmä
Kaukolämpö
Liesi
Keraaminen, erillisuuni
Lisätieto-ominaisuudet
Oma sauna, tie perille, sähköliittymä siirtyy, kulku suoraan ulos, antenni
Makuuhuoneen lattiamateriaali
Laminaatti
Makuuhuoneen seinämateriaali
Maalattu
Olohuoneen lattiamateriaali
Laminaatti
Olohuoneen seinämateriaali
Maalattu
Rakennusmateriaali
Puu, tiili
Saunan lattiamateriaali
Laatta
Saunan seinämateriaali
Puu
Takkatiedot
Muu
Viemäri
Kunnan
WC:n lattiamateriaali
Laatta
WC:n seinämateriaali
Kaakeli
WC:n varustus
Lattialämmitys
