4h, k, wc, kph, s, 2x vh, 2x lasitettu parveke, 90.5 m², 159 842 €
Kerrostalo, Seinäjoki, Jouppila, Jouppilantie 11
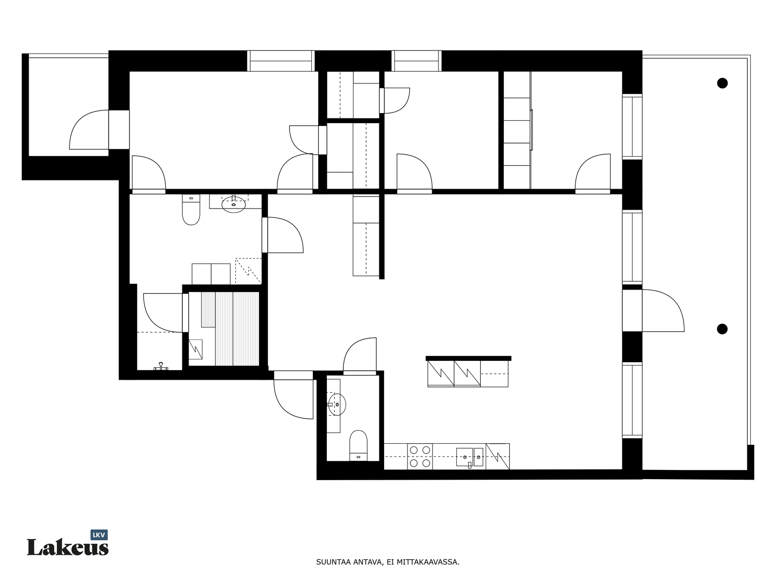
Mikäli etsit muuttovalmista ja tyylikästä ylimmän kerroksen huoneistoa hyvien palvelujen läheltä niin nyt tuli tarjolle koti, johon sinun on helppo ihastua! Tarjolla 90,5 m2 suuruinen valoisa kulmahuoneisto Jouppilankulman ylimmästä 8. kerroksesta. Huoneistossa täyttyy moni asia, joita varmasti arvostat arjessa. Heti huoneistoon tultaessa aukeaa avara eteinen, jonka vieressä erillinen wc. Tyylikäs ja toimiva keittiö on remontoitu vuonna 2023 ja keittiössä on todella paljon säilytystilaa sekä upea valaistus. Huoneistossa on kolme makuuhuonetta, joista kahdessa on vaatehuone. Yksi huoneista on varustettu lisäksi tyylikkäällä kiinteällä kaapistolla. Olohuoneen ja keittiön jatkeena on koko huoneiston levyinen lasitettu parveke, josta esteettömät näkymät kauas Jouppilan pientaloalueen yli ja upeat ilta-aurinkomaisemat. Kylpyhuoneessa on reilusti kodinhoitotilaa sekä wc. Suihkutila ja sauna järkevästi erillään näistä. Isossa makuuhuoneessa on lisäksi toinen lasitettu parveke lähellä kylpyhuonetta. Taloyhtiö on loistavalla sijainnilla lähellä monipuolisia Joupin, Framin sekä keskustan alueen palveluja ja työpaikkoja. Framin alueella pelkästään noin 1000 työpaikkaa. Jouppilankulmasta pyöräilet tuossa tuokiossa asioimaan Ideaparkiin tai keskustaan. Lisäksi viihtyisät jokivarren ulkoilualueet, ulkokuntosali sekä muut monipuoliset liikuntamahdollisuudet ovat ihan lähimaastossa. Framilta löydät mm. viihtyisät lounaspaikat ja kävellenkin olet tuossa tuokiossa Seinäjoen keskustassa. Asunnon käyttöön kuuluu irtaimistovarasto sekä lisäksi huoneistokaupan yhteydessä myydään erillinen lämmin varasto ja autohallipaikka omilla osakkeilla. Varaston velaton hinta on 5 000 € ja autohallipaikan velaton hinta on 20 000 €. Etätyöskentelijälle talossa on valmiina laajakaistayhteys, jonka perusnopeus on 25 M. Jouppilankulmassa asuessasi arki on helppoa ja huoletonta. Mikäli kiinnostuit ja haluat lisätietoja niin ota yhteyttä ja sovitaan esittely tähän upeaan kohteeseen! Juuso Lehto Ylempi kiinteistönvälittäjä YKV, LKV Auktorisoitu kiinteistöarvioitsija AKA/KHK Julkinen kaupanvahvistaja 0407146695 juuso.lehto@lakeuslkv.fi Lakeus LKV tekee asuntounelmistasi Seinäjoella totta! Harkitsetko asuntosi myyntiä? Haluatko ilmaisen hinta-arvion kodistasi? Varaa maksuton arviokäynti: https://www.lakeuslkv.fi
Perustiedot
Sijainti:
Seinäjoki Jouppila
Huoneisto:
Jouppilantie 11 A 46
Tyyppi:
kerrostalo
Kerros:
8 / 8
Velaton hinta:
329 000 €
Myyntihinta:
159 842 €
Hoitovastike:
Rahoitusvastike:
Vapautuminen:
Rakennusvuosi:
Asuinpinta-ala:
Yleiskunto:
hyvä
Tontin omistus:
oma
Kiinteistötunnus:
Kaavoitustilanne:
Asemakaava
Tontin pinta-ala
Kerrosala:
Muut tilat:
Rakennukset:
Lisätietoja:
Lisätiedot
Kustannukset ja rasitukset
Kunto ja varustus
Yhteydet ja palvelut
Muut tiedot
Jääkaappi ja pakastin
Jääkaappi, pakastin
Keittiön lattiamateriaali
Parketti
Keittiön seinien materiaali
Maalattu
Keittiön työtasojen materiaali
Kivi
Keittion muut varusteet
Liesituuletin, mikroaaltouuni, astianpesukone
Kodinhoitohuoneen lattiamateriaali
Laatta
Kodinhoitohuoneen seinämateriaali
Kaakeli
Kodinhoitohuoneen varustus
Pesukoneliitäntä, pyykkikaapit, pöytätaso
Kylpyhuoneen lattiamateriaali
Laatta
Kylpyhuoneen seinämateriaali
Kaakeli
Kylpyhuoneen varustus
Suihkuseinä, pesukoneliitäntä, lattialämmitys, wc-istuin, suihku, kylpyhuonekaapisto
Lämmitysjärjestelmä
Kaukolämpö
Liesi
Induktio, erillisuuni
Lisätieto-ominaisuudet
Hissi, parveke, oma sauna, kaapeli-tv
Makuuhuoneen lattiamateriaali
Parketti
Makuuhuoneen seinämateriaali
Maalattu
Nettiyhteys
Laajakaista
Olohuoneen lattiamateriaali
Parketti
Olohuoneen seinämateriaali
Maalattu, tapetti
Parveketyyppi
Lasitettu
Rakennusmateriaali
Betoni
Saunan lattiamateriaali
Laatta
Saunan seinämateriaali
Puu
Taloyhtiössä on...
Väestönsuoja, kaapeli-tv, Huoneistokohtaiset varastot
WC:n lattiamateriaali
Laatta
WC:n seinämateriaali
Tapetti
WC:n varustus
Lattiakaivo, bidee-suihku
