2h+k+kph+lasitettu parveke, 53.0 m², 81 812 €
Kerrostalo, Seinäjoki, Uppa, Kaartotie 63
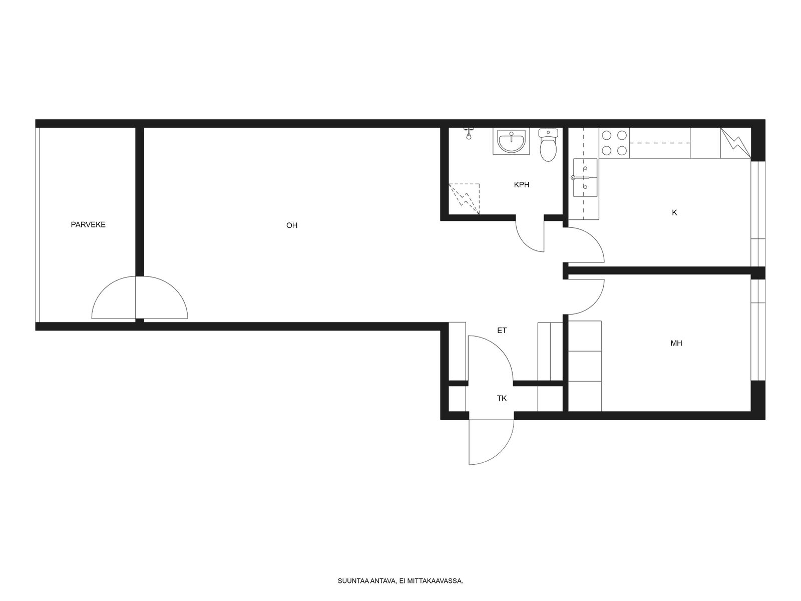
Kaunis valoisa läpitalon huoneisto lähellä keskustan palveluja Kaartotieltä. Huoneisto on täysin remontoitu vuonna 2015 ja asunto on pinnoiltaan hyväkuntoinen. Keittiön ja makuuhuoneen ikkunoista avautuu näkymä takapihalla sijaitsevaan Vapaudenpuistoon ja lähistöllä jokivarren viihtyisät ulkoilureitit. Huoneiston lasitettu parveke suuntautuu sisäpihalle. Sijainti on erinomainen mikäli etsit omaa vakituista kotia tai sijoitusasuntoa, alueen hyväkuntoisten asuntojen vuokrattavuus on hyvä. Etäisyydet esim. Seamk:n kampusalueelle Framille on n. 1,3 km ja rakenteilla oleva Kirkkokadun Sedu valmistuu opiskelijoiden ja työntekijöiden käyttöön tammikuussa 2028. Asunto Oy Kaartohovi on vuonna 1970 valmistunut 18 huoneiston taloyhtiö joka on omalla tontilla. Talossa on tehty mm. käyttövesiputkiremontti 2015, ikkunaremontti 2018 sekä viemäreiden sukitus 2024. Huoneiston hoitovastike on 249,10 €/kk. Ota yhteyttä niin kerron mielelläni lisää ja sovitaan samalla kohteeseen oma yksityinen esittelyaikasi. Juuso Lehto Ylempi kiinteistönvälittäjä YKV, LKV Auktorisoitu kiinteistöarvioitsija AKA/KHK Julkinen kaupanvahvistaja 0407146695 Lakeus LKV tekee asuntounelmistasi Seinäjoella totta! Harkitsetko asuntosi myyntiä? Haluatko ilmaisen hinta-arvion kodistasi? Varaa maksuton arviokäynti. https://www.lakeuslkv.fi
Seuraava esittely:
20.4.2026 17:30 - 18:00
Perustiedot
Sijainti:
Seinäjoki Uppa
Huoneisto:
Kaartotie 63 C 15
Tyyppi:
kerrostalo
Kerros:
1 / 2
Velaton hinta:
89 000 €
Myyntihinta:
81 812 €
Hoitovastike:
Rahoitusvastike:
Vapautuminen:
Rakennusvuosi:
Asuinpinta-ala:
Yleiskunto:
hyvä
Tontin omistus:
oma
Kiinteistötunnus:
Kaavoitustilanne:
Asemakaava
Tontin pinta-ala
Kerrosala:
Muut tilat:
Rakennukset:
Lisätietoja:
Lisätiedot
Kustannukset ja rasitukset
Kunto ja varustus
Yhteydet ja palvelut
Muut tiedot
Jääkaappi ja pakastin
Jääkaappi/pakastin
Keittiön lattiamateriaali
Laminaatti
Keittiön seinien materiaali
Maalattu
Keittiön työtasojen materiaali
Laminaatti
Keittion muut varusteet
Liesituuletin, astianpesukone
Kylpyhuoneen lattiamateriaali
Laatta
Kylpyhuoneen seinämateriaali
Kaakeli
Kylpyhuoneen varustus
Suihkuseinä, pesukoneliitäntä, lattialämmitys, wc-istuin, suihku
Lämmitysjärjestelmä
Kaukolämpö
Liesi
Keraaminen
Lisätieto-ominaisuudet
Parveke, kaapeli-tv
Makuuhuoneen lattiamateriaali
Laminaatti
Makuuhuoneen seinämateriaali
Maalattu
Nettiyhteys
Laajakaista
Olohuoneen lattiamateriaali
Laminaatti
Olohuoneen seinämateriaali
Maalattu
Parveketyyppi
Lasitettu
Rakennusmateriaali
Betoni
Taloyhtiössä on...
Huoneistokohtaiset varastot
