asuinhuoneisto 40,5 m2, yhteistilat 114,5 m2 sekä ryhmäkodin tilat 187 m2, 342.0 m², 513 000 €
Kerrostalo, Seinäjoki, Uppa, Keponkatu 1
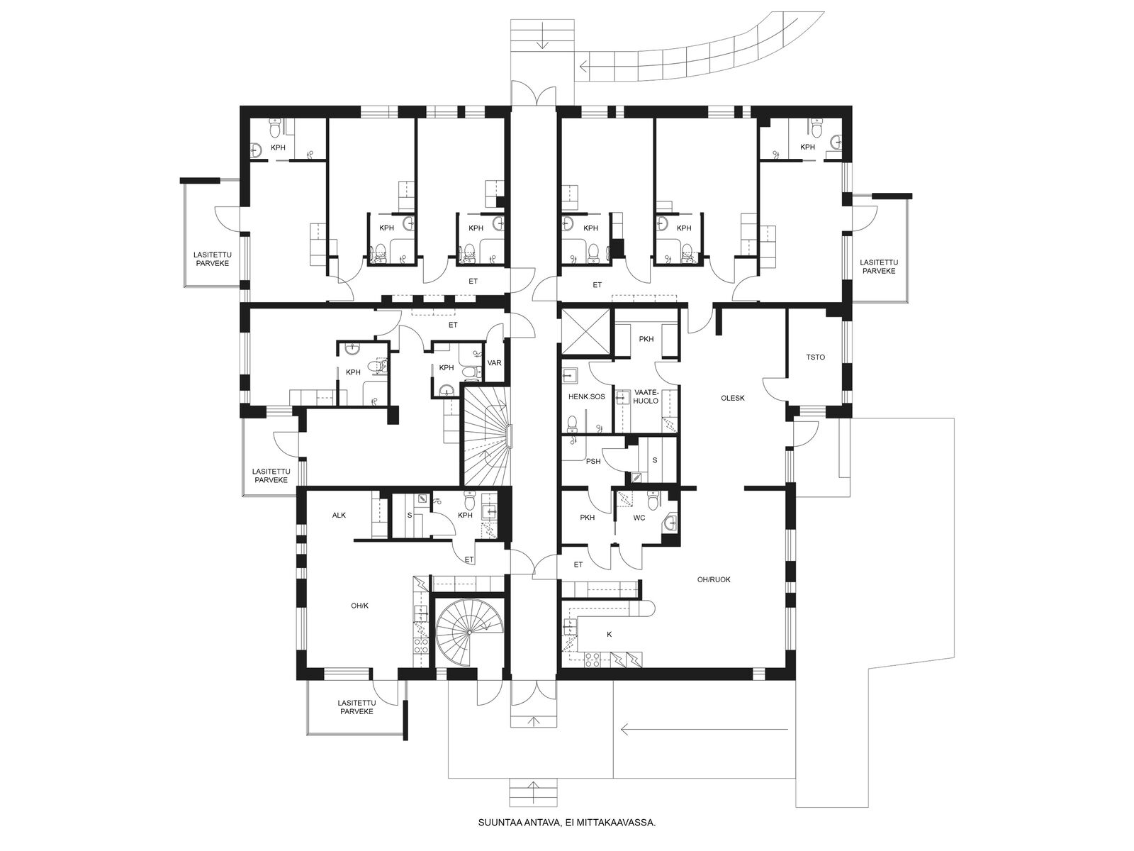
Myynnissä 1. kerroksessa sijaitsevat entisen ryhmäkodin tilat osoitteessa Keponkatu 1, 60100 Seinäjoki. Ryhmäkodin tilat ovat vuoden 2025 aikana vapautuneet pitkäaikaiselta vuokralaiselta, joka on toiminut tiloissa talon valmistumisesta vuodesta 2009 alkaen. Kaupan kohteena ovat Asunto Oy Seinäjoen Keponportti-yhtiön osakkeet: 1-197, 198-729, 730-1031, 1032-1263 sekä 1264-1597. Osakkeet oikeuttavat hallitsemaan yhtiöjärjestyksen mukaisia 1. kerroksessa sijaitsevia huoneistoja: As 1 = asuinhuoneisto 40,5 m2. R 1 = Yhteistila 114,5 m2. R 1 = Ryhmäkoti 65,0 m2. R 2 = Ryhmäkoti 50,0 m2. R 3 = Ryhmäkoti 72 m2. Huoneisto As 1 on vuokrattu toistaiseksi voimassaolevalla vuokrasopimuksella. Muut tilat ovat heti vapaat. Keponkadulta etäisyys esim. kirjastolle jonka läheisyydessä myös Lakeuden risti sekä kaupunginteatteri, tulee kävellen Koulukatua pitkin n. 1,1 kilometriä. Upan viihtyisät puistopolut lähistöllä. Etäisyys Seamk:n kampusalueelle Framille on hiukan yli 2 km. Kaikkien huoneistojen hoitovastike on yhteensä 1299 euroa/kk eikä niihin kohdistu taloyhtiölainaa. Lämmitysmuotona on kaukolämpö miellyttävänä lattialämmityksenä, ja huoneistoissa on koneellinen tulo- ja poistoilmanvaihto lämmöntalteenotolla. Taloyhtiö on omalla tontilla ja se on valmistunut vuonna 2009. Ota yhteyttä niin kerron mielelläni lisää! Juuso Lehto Ylempi kiinteistönvälittäjä YKV, LKV Auktorisoitu kiinteistöarvioitsija AKA/KHK Julkinen kaupanvahvistaja 0407146695 juuso.lehto@lakeuslkv.fi Lakeus LKV tekee asuntounelmistasi Seinäjoella totta! Harkitsetko asuntosi myyntiä? Haluatko ilmaisen hinta-arvion kodistasi? Varaa maksuton arviokäynti: https://www.lakeuslkv.fi
Perustiedot
Sijainti:
Seinäjoki Uppa
Huoneisto:
Keponkatu 1 A
Tyyppi:
kerrostalo
Kerros:
1 / 6
Velaton hinta:
513 000 €
Myyntihinta:
513 000 €
Hoitovastike:
Rahoitusvastike:
Vapautuminen:
Rakennusvuosi:
Asuinpinta-ala:
Yleiskunto:
ei luokiteltu
Tontin omistus:
oma
Kiinteistötunnus:
Kaavoitustilanne:
Asemakaava
Tontin pinta-ala
Kerrosala:
Muut tilat:
Rakennukset:
Lisätietoja:
Lisätiedot
Kustannukset ja rasitukset
Kunto ja varustus
Yhteydet ja palvelut
Muut tiedot
Lämmitysjärjestelmä
Kaukolämpö
Lisätieto-ominaisuudet
Hissi, oma sauna
Rakennusmateriaali
Tiili, betoni
Taloyhtiössä on...
Huoneistokohtaiset varastot
