5h+k+s, 140.0 m², 269 000 €
Rivitalo, Seinäjoki, Hallila, Liisanraitti 3
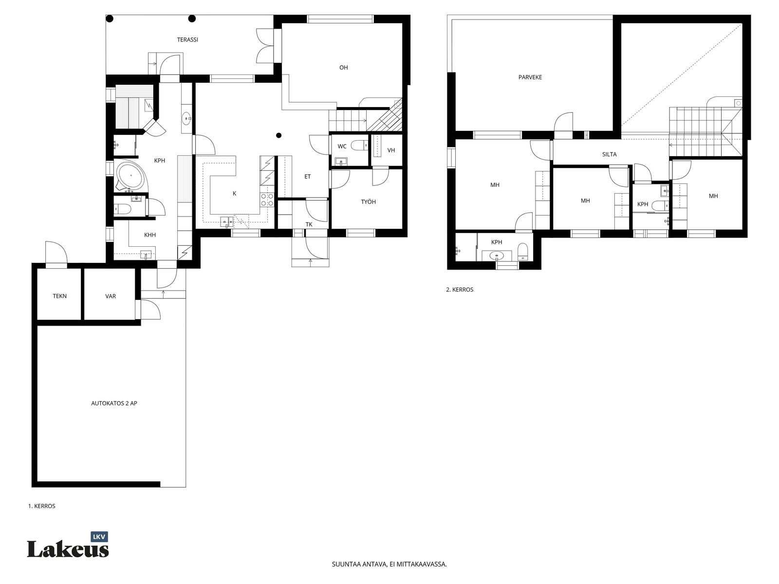
Erinomaisella sijainnilla Hallilassa Liisanraitilla vuonna 2004 valmistunut tyylikäs ja moderni kivirakenteinen rivitalon päätyhuoneisto vapautumassa uusille asukkaille. Valoisa 140 m2 suuruinen päätyhuoneisto kätkee sisälleen toimivat tilat isommankin perheen sujuvaan arkeen. Etupihalla kahdelle autolle katospaikat, lämmin varasto sekä kaksi sisäänkäyntiä, joista toinen menee suoraan kodinhoitohuoneeseen. Alakerrassa on lisäksi kaksi wc:tä, keittiö ja ruokailutila, upea pesutila varusteltuna poreammeella ja sauna, jossa on heti valmis kiuas. Olohuoneen huonekorkeus tekee tilasta todella avaran ja tunnelman tilaan viimeistelee kaunis takka. Yläkerrassa on kolme makuuhuonetta, kaksi erillistä wc:tä joista toisessa on suihkukaappi. Lisäksi on iso parveke, jonne on juuri uusittu komposiittilattia. Parveke on osittain katettu. Sijainti on erinomainen. Kivistön koulu ja Seinäjoen yhteiskoulu on vain vähän reilun kilometrin päässä ja lähikauppaan matkaa vain 900m. Etäisyys keskustaan n. 2,7 km ja Halliskan kuntoradalle 1 km. Taloyhtiöllä on oma tontti ja ajopiha-alue on asfaltoitu. Huoneistossa on miellyttävä lattialämmitys kaukolämmöllä ja huoneistokohtainen koneellinen ilmanvaihto lämmön talteenotolla. Hoitovastike sisältää lämmityskulut. Mikäli etsit toimivaa ja valoisaa perheasuntoa erinomaisella sijainnilla palvelujen lähellä niin tässä on mainio vaihtoehto. Koti vapautuu uusien asukkaiden käyttöön sopimuksen mukaan. Mikäli kiinnostuit niin ota yhteyttä. Kerron mielelläni lisää ja sovitaan samalla yksityinen esittelyaika. Lisätiedot: Juuso Lehto Ylempi kiinteistönvälittäjä YKV, LKV Auktorisoitu kiinteistöarvioija, AKA/KHK Julkinen kaupanvahvistaja 040 714 6695 juuso.lehto@lakeuslkv.fi
Seuraava esittely:
1.11.2025 15:00 - 15:40
Perustiedot
Sijainti:
Seinäjoki Hallila
Huoneisto:
Liisanraitti 3 A 3
Tyyppi:
rivitalo
Kerros:
1-2 / 2
Velaton hinta:
269 000 €
Myyntihinta:
269 000 €
Hoitovastike:
Rahoitusvastike:
Vapautuminen:
Rakennusvuosi:
Asuinpinta-ala:
Yleiskunto:
hyvä
Tontin omistus:
oma
Kiinteistötunnus:
Kaavoitustilanne:
Asemakaava
Tontin pinta-ala
Kerrosala:
Muut tilat:
Rakennukset:
Lisätietoja:
Lisätiedot
Kustannukset ja rasitukset
Kunto ja varustus
Yhteydet ja palvelut
Muut tiedot
Jääkaappi ja pakastin
Jääkaappi, pakastin
Keittiön lattiamateriaali
Laatta
Keittiön seinien materiaali
Kaakeli, maalattu
Keittiön työtasojen materiaali
Laminaatti
Keittion muut varusteet
Liesituuletin, astianpesukone
Kodinhoitohuoneen lattiamateriaali
Laatta
Kodinhoitohuoneen seinämateriaali
Kaakeli, maalattu
Kodinhoitohuoneen varustus
Pesukoneliitäntä, pesuallas, lattialämmitys, pyykkikaapit, kurapiste, pöytätaso
Kylpyhuoneen lattiamateriaali
Laatta
Kylpyhuoneen seinämateriaali
Kaakeli
Kylpyhuoneen varustus
Poreamme, suihkuseinä, lattialämmitys, suihku, peili, kylpyhuonekaapisto
Lämmitysjärjestelmä
Kaukolämpö
Liesi
Keraaminen, erillisuuni
Lisätieto-ominaisuudet
Oma sauna, kaapeli-tv, kulku suoraan ulos
Makuuhuoneen lattiamateriaali
Parketti
Makuuhuoneen seinämateriaali
Maalattu
Muut
Huoneistokohtainen ilmanvaihtokone
Olohuoneen lattiamateriaali
Parketti
Olohuoneen seinämateriaali
Maalattu
Rakennusmateriaali
Kivi, betoni
Saunan lattiamateriaali
Laatta
Saunan seinämateriaali
Puu
Taloyhtiössä on...
Kaapeli-tv, Huoneistokohtaiset varastot
WC:n lattiamateriaali
Laatta
WC:n seinämateriaali
Kaakeli
