4h+k+khh+kph+s+wc+2 vh, 102.0 m², 269 000 €
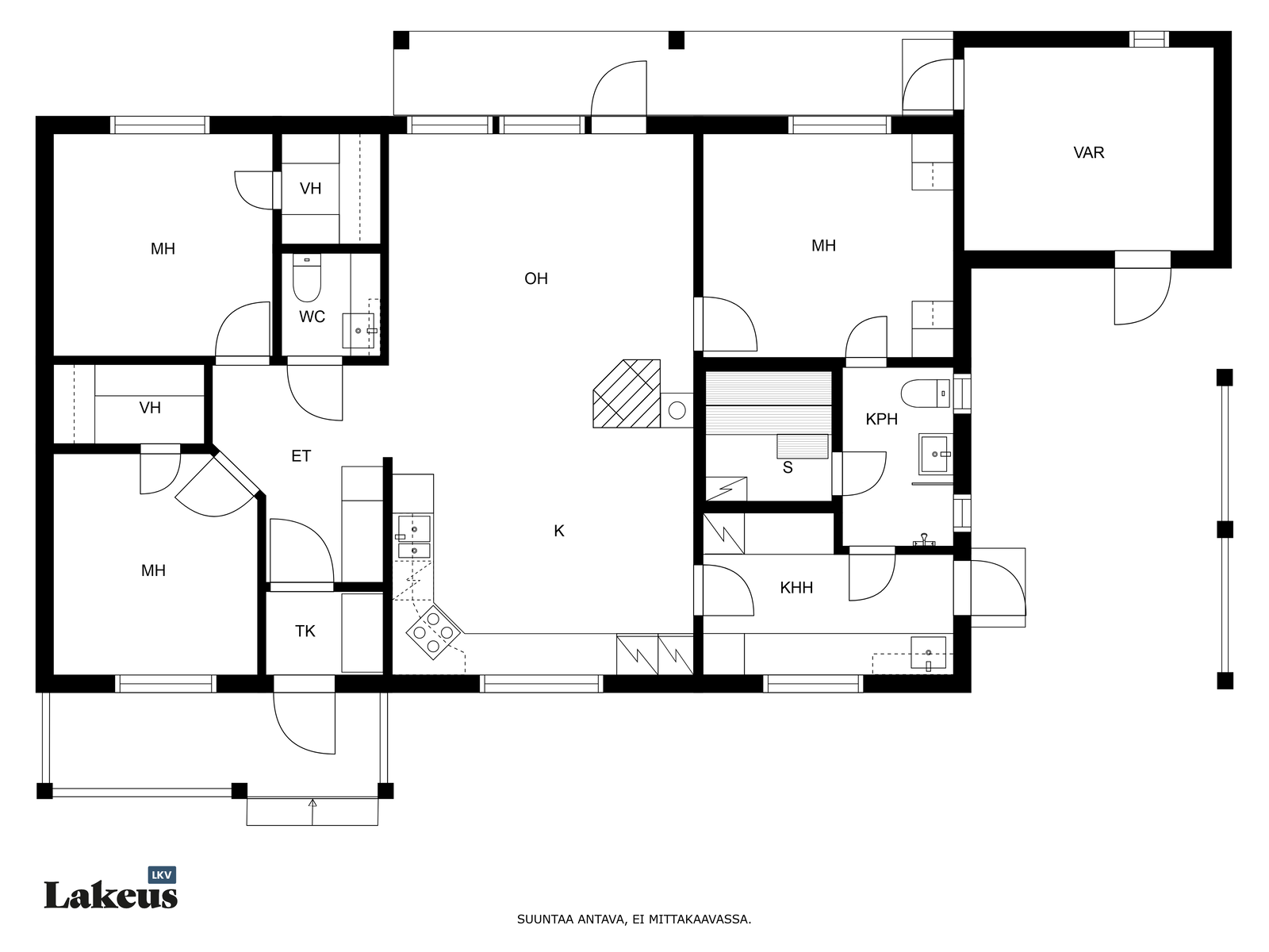
Omakotitalo, Seinäjoki, Pajuluoma, Vänkärinlenkki 1
Seuraava esittely:
4.1.2026 14:00 - 14:40
Perustiedot
Sijainti:
Seinäjoki Pajuluoma
Huoneisto:
Vänkärinlenkki 1
Tyyppi:
omakotitalo
Kerros:
1 / 1
Velaton hinta:
269 000 €
Myyntihinta:
269 000 €
Hoitovastike:
Rahoitusvastike:
Vapautuminen:
Rakennusvuosi:
Asuinpinta-ala:
Yleiskunto:
hyvä
Tontin omistus:
oma
Kiinteistötunnus:
Kaavoitustilanne:
Asemakaava
Tontin pinta-ala
Kerrosala:
Muut tilat:
Rakennukset:
Lisätietoja:
Lisätiedot
Kustannukset ja rasitukset
Kunto ja varustus
Yhteydet ja palvelut
Muut tiedot
Ilmanvaihto
Koneellinen poisto
Jääkaappi ja pakastin
Jääkaappi, pakastin
Keittiön lattiamateriaali
Laminaatti
Keittiön seinien materiaali
Kaakeli, maalattu
Keittion muut varusteet
Liesituuletin, mikroaaltouuni, astianpesukone
Kiinteistön vesijohto
Kunnan
Kodinhoitohuoneen lattiamateriaali
Laatta
Kodinhoitohuoneen seinämateriaali
Kaakeli, maalattu
Kodinhoitohuoneen varustus
Pesukoneliitäntä, pesuallas, lattialämmitys, lattiakaivo, pyykkikaapit, kurapiste, pöytätaso, keskuspölynimuri
Kylpyhuoneen lattiamateriaali
Laatta
Kylpyhuoneen seinämateriaali
Kaakeli
Kylpyhuoneen varustus
Suihkuseinä, lattialämmitys, wc-istuin, suihku, peili, kylpyhuonekaapisto
Lämmitys
Vesikiertoinen lattialämmitys, muu
Lämmitysjärjestelmä
Kaukolämpö
Liesi
Induktio, erillisuuni
Lisätieto-ominaisuudet
Oma sauna, tie perille, kaapeli-tv, kuntotarkastus tehty, sähköliittymä siirtyy, kulku suoraan ulos
Makuuhuoneen lattiamateriaali
Laminaatti
Makuuhuoneen seinämateriaali
Maalattu, tapetti
Muut
Verhotangot, keskuspölynimuri, matontamppausteline, pyykinkuivausteline
Nettiyhteys
Valokuitu
Olohuoneen lattiamateriaali
Laminaatti
Olohuoneen seinämateriaali
Maalattu
Rakennusmateriaali
Puu
Saunan lattiamateriaali
Laatta
Saunan seinämateriaali
Puu
Takkatiedot
Muu
Viemäri
Kunnan
WC:n lattiamateriaali
Laatta
WC:n seinämateriaali
Tapetti
WC:n varustus
Lattialämmitys
